Search

Leave a Message

Thank you for your message. I'll be in touch with you shortly.

Explore My Properties

Property Description

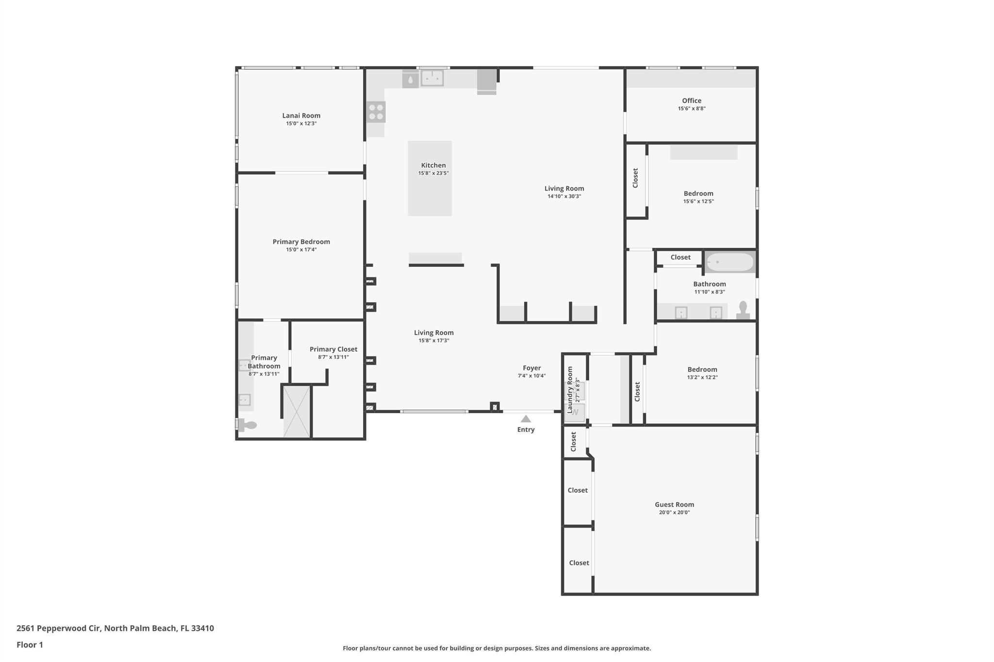
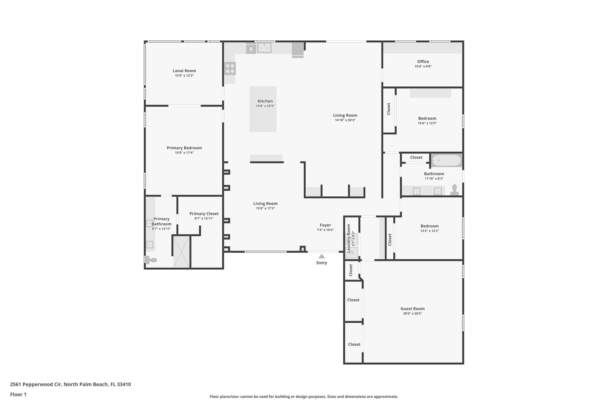
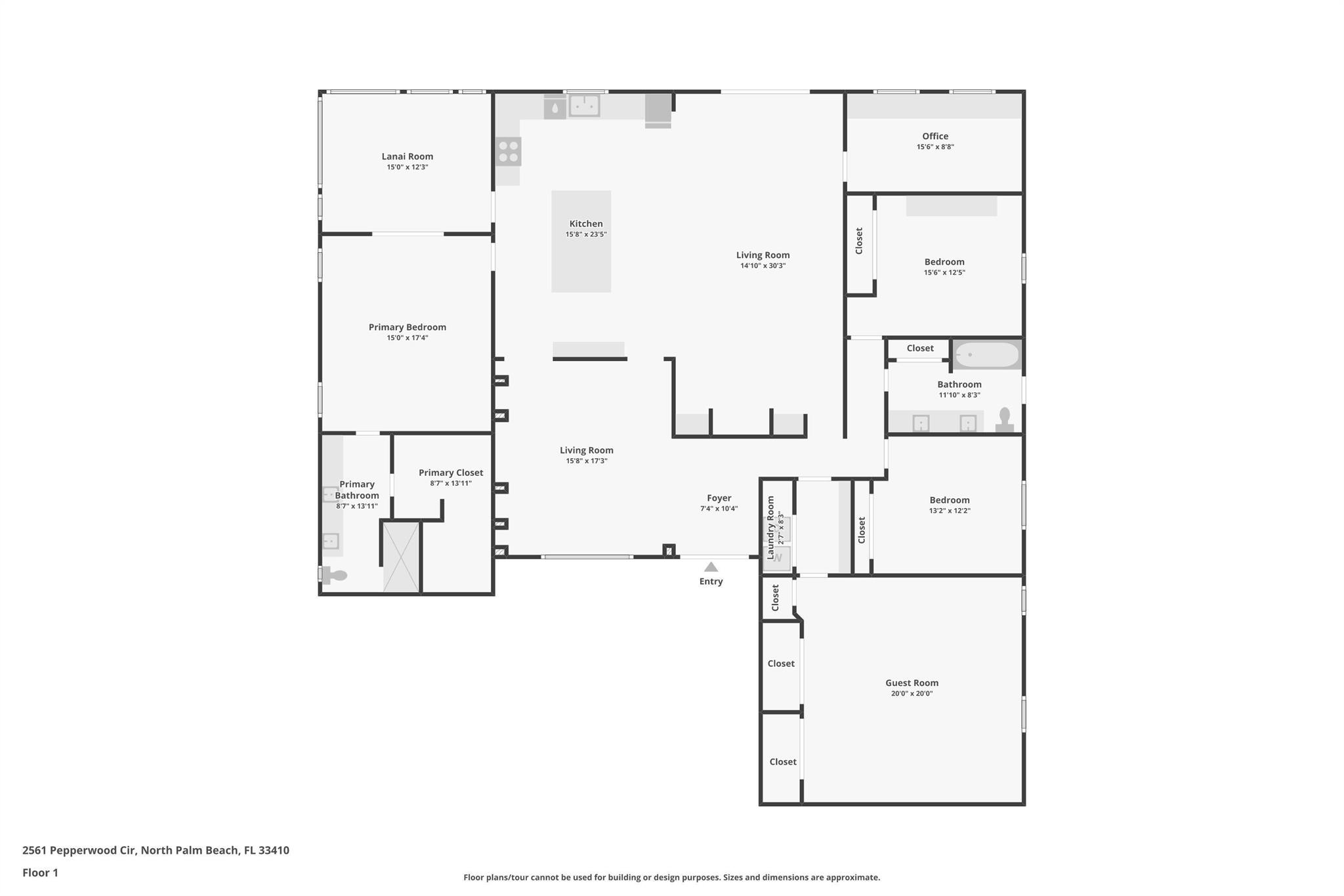
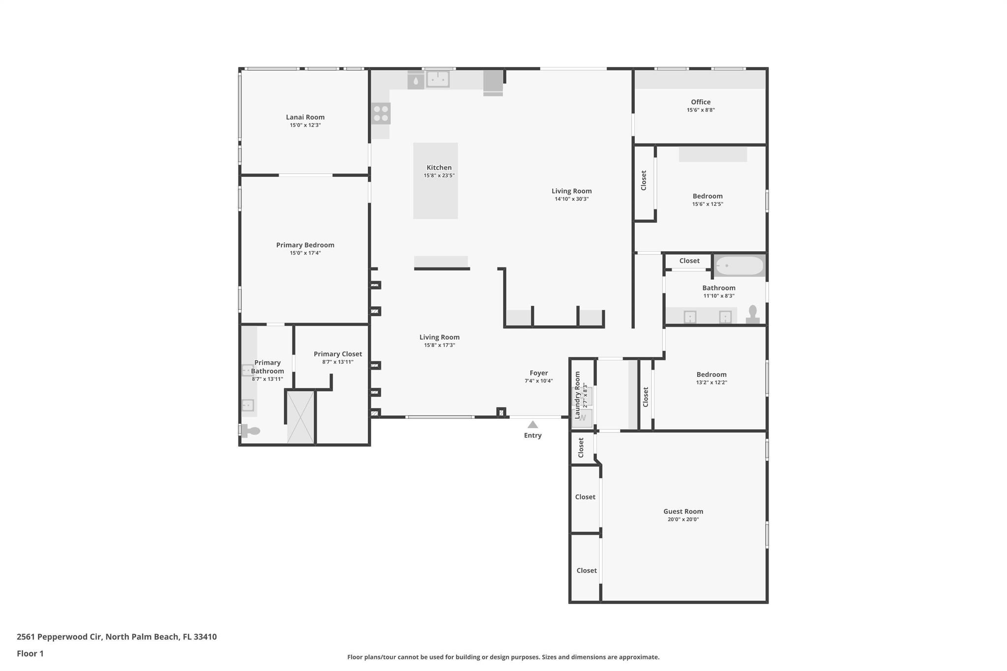
Welcome to your private oasis in the heart of North Palm Beach! Discover the perfect blend of comfort and luxury in this beautifully updated 4-bedroom, 2-bathroom home, with OVER 3,000 sq ft of living space, situated on a generous lot in a prime location. The open-concept floor-plan seamlessly connects the living, dining, and kitchen areas, creating an inviting space for both relaxation and entertaining. There is even an A/C screened in porch overlooking the backyard bridging the gap of indoor/outdoor living! The heart of the home is the modern kitchen, featuring a spacious island, sleek countertops, and contemporary finishes. The converted garage has been transformed into a versatile family entertainment space, ideal for movie nights, game days, or a home gym. (see supplement).

Overview

Property Status
Sold
Lot Size
10,804 Sq.Ft.
MLS ID
R11087380
Property Type
Residential
Year Built
1980

Features & Amenities

Total Area
3,271 Sq.Ft.
Stories
1
Water Source
Public
Utilites
Cable Available, Electricity Available, Sewer Available, Water Available
Pool
Heated, Pool
Roof
Metal
Lot Features
1/4 Acre
Parking
Attached, Driveway, Garage
Heat Type
Central
Air Conditioning
Central Air
Appliances
Cooktop, Dryer, Dishwasher, Electric Range, Electric Water Heater, Disposal, Ice Maker, Microwave, Refrigerator, Washer
Other Interior Features
Breakfast Bar, Built-in Features, Closet Cabinetry, Dual Sinks, Eat-in Kitchen, Family/Dining Room, Living/Dining Room, Split Bedrooms, Separate Shower, Walk-In Closet(s)
Sewer
Public Sewer
HOA Amenities
Other
Security Features
Security System, Fire Sprinkler System, Smoke Detector(s)
Sales Price
$900,000
Real Estate Tax
$12,412/yr

Downloads

2561 Pepperwood Circle

Schedule a Tour

We would love to help you see this beautiful home! As a full-service brokerage, we can help you tour. Please submit an offer, and answer questions about the buying process.

Enter a valid email

Thank you

for your interest in 2561 Pepperwood Circle, North Palm Beach, FL 33410

back to page
2561 Pepperwood Circle
Navigate
2561 Pepperwood Circle
explore in 3d

I'm Interested In

2561 Pepperwood Circle

or Contact

Browse Our

Featured Properties

  • 2323 Lake Drive 201 For Sale

    $3,395,000

    2323 Lake Drive 201, Singer Island, FL 33404

    • 3 Beds
    • 4 Baths
    • 2,698 Sq.Ft.
  • 5280 N Ocean Drive 7d Pending

    $975,000

    5280 N Ocean Drive 7d, Singer Island, FL 33404

    • 2 Beds
    • 2 Baths
    • 1,668 Sq.Ft.
  • 5440 N Ocean Drive 1002 For Sale

    $799,000

    5440 N Ocean Drive 1002, Singer Island, FL 33404

    • 2 Beds
    • 2 Baths
    • 1,400 Sq.Ft.
  • 4200 N Ocean Drive 1-1705 For Sale

    $745,000

    4200 N Ocean Drive 1-1705, Singer Island, FL 33404

    • 2 Beds
    • 2 Baths
    • 1,432 Sq.Ft.
  • 5280 N Ocean Drive 4d For Sale

    $690,000

    5280 N Ocean Drive 4d, Singer Island, FL 33404

    • 2 Beds
    • 2 Baths
    • 1,662 Sq.Ft.
  • 5440 N Ocean Drive 706 For Sale

    $675,000

    5440 N Ocean Drive 706, Singer Island, FL 33404

    • 2 Beds
    • 2 Baths
    • 1,400 Sq.Ft.
  • 5380 N Ocean Drive 18j Active Under Contract

    $16,000/mo

    5380 N Ocean Drive 18j, Singer Island, FL 33404

    • 3 Beds
    • 4 Baths
    • 2,614 Sq.Ft.
  • 4000 N Ocean Drive 1702 For Lease

    $12,000/mo

    4000 N Ocean Drive 1702, Singer Island, FL 33404

    • 2 Beds
    • 3 Baths
    • 2,011 Sq.Ft.
  • 4100 N Ocean Drive 1501 For Lease

    $8,000/mo

    4100 N Ocean Drive 1501, Singer Island, FL 33404

    • 2 Beds
    • 4 Baths
    • 2,011 Sq.Ft.
  • 5420 N Ocean Drive 506 For Lease

    $6,850/mo

    5420 N Ocean Drive 506, Singer Island, FL 33404

    • 2 Beds
    • 2 Baths
    • 1,457 Sq.Ft.
  • 5380 N Ocean Drive 9a For Lease

    $6,500/mo

    5380 N Ocean Drive 9a, Singer Island, FL 33404

    • 2 Beds
    • 2 Baths
    • 1,532 Sq.Ft.
  • 5280 N Ocean Drive 8b For Lease

    $6,250/mo

    5280 N Ocean Drive 8b, Singer Island, FL 33404

    • 2 Beds
    • 2 Baths
    • 1,662 Sq.Ft.
  • 5380 N Ocean Drive 17g Pending

    $6,000/mo

    5380 N Ocean Drive 17g, Singer Island, FL 33404

    • 2 Beds
    • 2 Baths
    • 1,291 Sq.Ft.
  • 5420 N Ocean Drive 505 For Lease

    $6,000/mo

    5420 N Ocean Drive 505, Singer Island, FL 33404

    • 2 Beds
    • 2 Baths
    • 1,520 Sq.Ft.
  • 5510 N Ocean Drive 12b For Lease

    $6,000/mo

    5510 N Ocean Drive 12b, Singer Island, FL 33404

    • 2 Beds
    • 2 Baths
    • 1,435 Sq.Ft.
  • 5480 N Ocean Drive A10c For Lease

    $5,500/mo

    5480 N Ocean Drive A10c, Singer Island, FL 33404

    • 2 Beds
    • 2 Baths
    • 1,330 Sq.Ft.
  • 4000 N Ocean Drive 401 Pending

    $4,500/mo

    4000 N Ocean Drive 401, Singer Island, FL 33404

    • 2 Beds
    • 4 Baths
    • 2,011 Sq.Ft.
  • 5440 N Ocean Drive 1002 For Lease

    $4,250/mo

    5440 N Ocean Drive 1002, Singer Island, FL 33404

    • 2 Beds
    • 2 Baths
    • 1,400 Sq.Ft.
  • 5280 N Ocean Drive 7b Active Under Contract

    $4,200/mo

    5280 N Ocean Drive 7b, Singer Island, FL 33404

    • 2 Beds
    • 2 Baths
    • 1,662 Sq.Ft.
  • 5420 N Ocean Drive 903 Active Under Contract

    $3,600/mo

    5420 N Ocean Drive 903, Singer Island, FL 33404

    • 2 Beds
    • 2 Baths
    • 1,223 Sq.Ft.
  • 4200 N Ocean Drive 2-405 Active Under Contract

    $3,250/mo

    4200 N Ocean Drive 2-405, Singer Island, FL 33404

    • 2 Beds
    • 2 Baths
    • 1,210 Sq.Ft.
  • 1501 H Avenue W Active Under Contract

    $2,250/mo

    1501 H Avenue W, Riviera Beach, FL 33404

    • 3 Beds
    • 1 Bath
    • 1,317 Sq.Ft.
View All

Follow Us On Instagram